



Дом Хюгге 45 — это современный модульный дом под ключ с двумя спальнями, который полностью подходит для постоянного проживания. Это решение для семьи из 3–4 человек, где уже есть всё необходимое для комфортной жизни круглый год.
Дом изготавливается на производстве, доставляется на участок в Екатеринбурге и Свердловской области и устанавливается за 1 день — без стройки, грязи и длительных процессов.
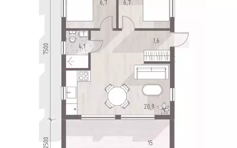
Главное отличие Хюгге 45 — полноценная планировка с двумя отдельными спальнями.
Это даёт:
удобное размещение семьи с ребёнком
возможность разделить личное пространство
комфорт при длительном проживании
Дом уже не ограничен форматом «временного решения» — это полноценное жильё.
В доме предусмотрена общая зона, где размещается:
кухня
обеденная зона
диван и зона отдыха
Это центр дома, где удобно проводить время всей семьёй или принимать гостей.
В Хюгге 45 предусмотрен вместительный санузел, в котором:
есть душевая
размещается стиральная машина
остаётся комфортное пространство
Это важный момент для постоянного проживания — дом полностью закрывает бытовые задачи.
Хюгге 45 — это дом, в котором можно жить постоянно:
подходит для семьи из 4 человек
комфортен в любое время года
рассчитан на регулярное использование
Это уже не дачный формат, а полноценный жилой дом.
Несмотря на размер и функциональность, дом остаётся модульным:
производство в цеху
доставка на участок
установка за 1 день
готовность к проживанию
Вы получаете полноценный дом без длительного строительства.
семье с 1–2 детьми
для постоянного проживания
как основной дом на участке
для тех, кто хочет готовое решение без стройки
Хюгге 45 — это оптимальный формат, в котором уже есть всё необходимое для жизни:
отдельные спальни
общая зона
санузел
хранение
Без лишних метров, но с полным комфортом.
Если вы ищете дом под ключ в Екатеринбурге или Свердловской области для постоянного проживания — Хюгге 45 станет надёжным и удобным решением.
Оставьте заявку, чтобы:
узнать стоимость
получить консультацию
подобрать комплектацию под ваш участок
Мы используем файлы cookie в соответствии с Политикой конфиденциальности и Политикой использования cookies.
Нажимая кнопку «Принимаю», Вы даете ИП Ларионова Алена Витальевна согласие на обработку Ваших персональных данных в целях совершенствования нашего веб-сайта, а также повышения удобства его использования.
Запретить использование cookies Вы можете самостоятельно в настройках Вашего браузера.